Harmonic Trend [L]

Darakeh Mixed-use Complex

previous project

next project

Mixed-use

Design

2008

Darakeh, Tehran, Iran

40,000 m2

Lead Architect:

Ali Hamidi Moghadam

Team:

Nima Farzaneh, Mobasher Nikouyi, Neda Heydari, Sahar Navabakhsh

Client:

Tehran Municipality

WHAT IS THE BEST SOLUTION TO INCORPORATE THE NATURE AND URBANITY AS BETWEEN SPACE?

 

Darakeh is one of the natural beautiful regions in Tehran which has been located along the DarakehRiver.

This project has been inspired by the unique context of its own that is going to be its coexistence. w have studied the building types and magnificent nature of this place specially the green rocks, river, and above all, the human being that are inseparable from the nature as if without them this loop is going to be discrete.

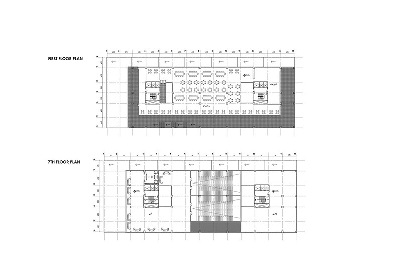
Having embedded the parking lots, which are the main problems of darakeh context, inside the commercial-cultural building it seems that the parking has been hidden inside the mountain.

 

1. organizing the urban space

2. space distribution

3. project analysis

4. parking distribution

5. site analysis

6. parking

7. parden as the project structure = project structure proposal on the valleys prosperity basis as the tehran's megacity infrastructure

8. street as the circulation conjunction between the building - nature walkability with creating a harmonious grid of routes

9. reducing the excavation - locating the vehicular access along the topography lines

10. linking the functional spaces to the parking in each level

© 2017 Harmonic Trend [L]    |   v2.30